Property Type
Condo, Apartment
Parking
Garage: No, 1 parking
MLS #
R3063544
Size
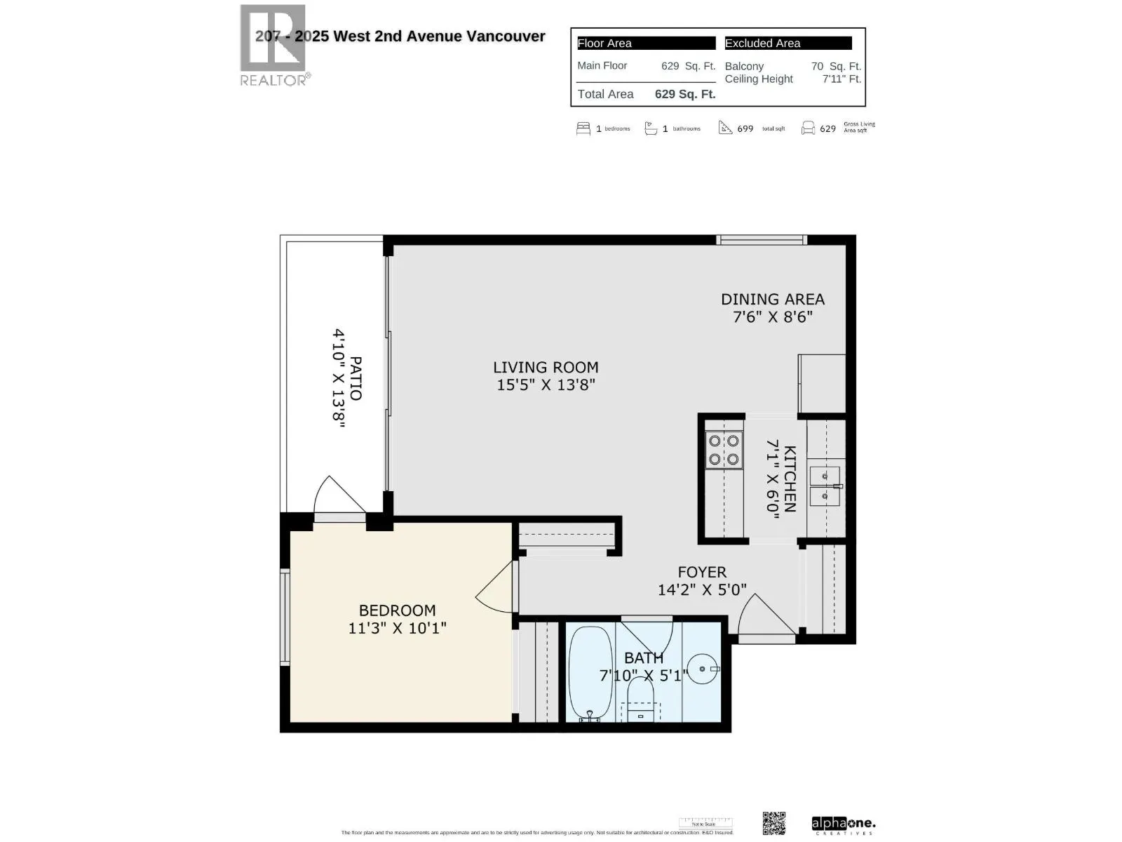
629 sqft
Basement
-
Listed on
-
Lot size
-
Tax
-
Days on Market
-
Year Built
1967
Maintenance Fee
$410.50/mo
